Architecture

Floor Plan
Overview

Dual-occupancy floorplans — two self-contained residences, each designed for comfort, light, and flow.

The dual-occupancy design presents two mirrored yet individually distinct residences, each crafted with meticulous attention to flow, light, and privacy. Ground floor celebrates open-plan living connecting seamlessly to private outdoor entertaining zones. The first floor is dedicated to private retreat — generous master, ensuite, and additional bedrooms.

Note: Detailed measurements and specifications are available upon request to registered enquirers only.

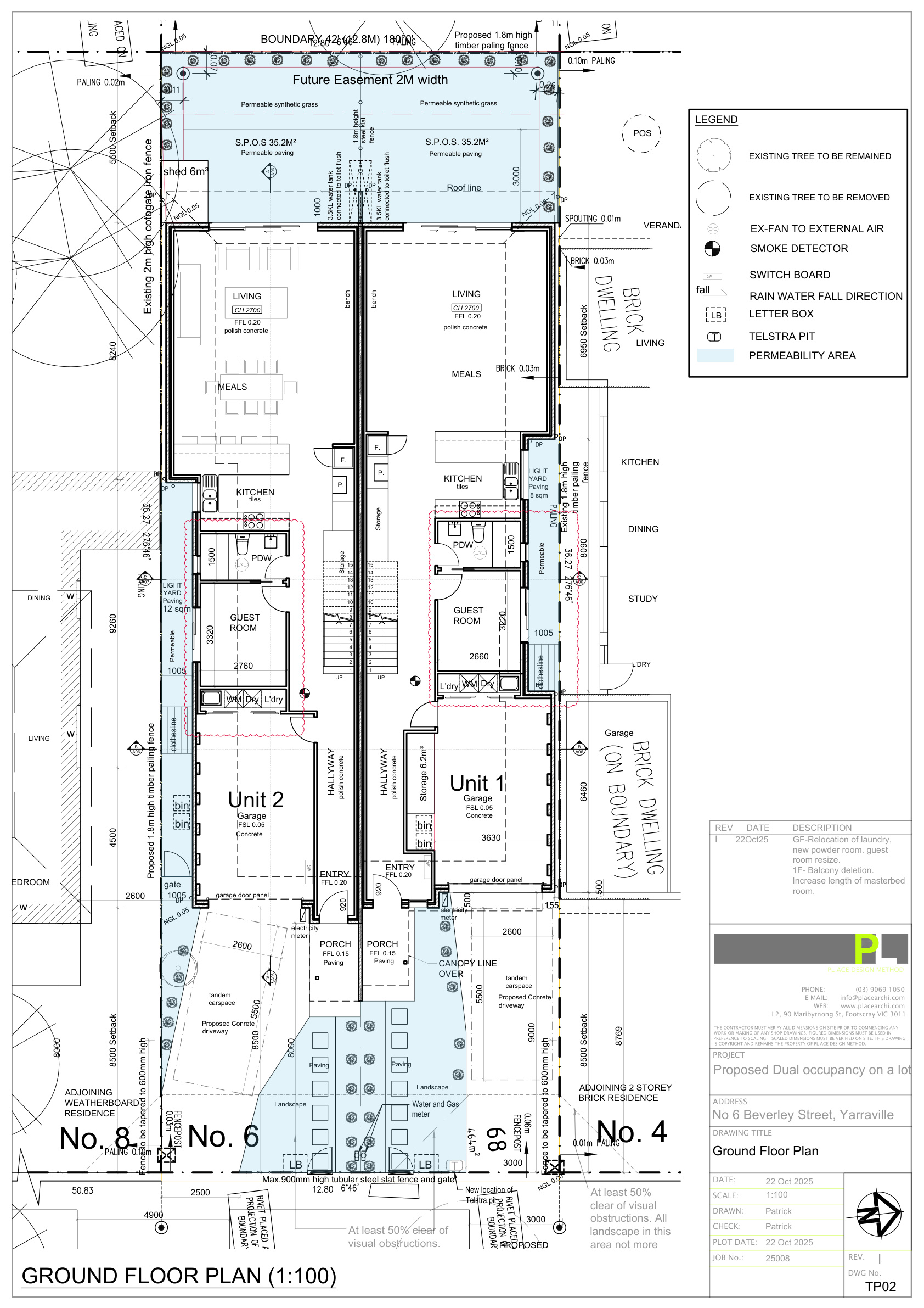
Ground Floor Plan — 6 Beverley Street Yarraville
Overview only · Detailed plans available upon request
Ground Floor
🛋 Open-plan Living & Dining
🍽 Gourmet Kitchen
🚽 Powder Room
🌿 Alfresco Entertaining
🚗 Garage + Laundry
First Floor
🛏 Master Bedroom + Walk-in Robe
🚿 Master Ensuite
🛏 Bedroom 2 + Bedroom 3
🛁 Main Bathroom
Request Detailed Plans →